Appartamento in vendita a Camaiore
Camaiore
Zona: - Via Vittorio Emanuele, 5
€ 215.000
#100 mq
#2
#1

Appartamento in vendita a Camaiore

Cod. 25011 - Santa Sofía
#100 mq
#2 Camere
#1 Bagni
In Esclusiva

Camaiore centro: vendesi Appartamento con posto auto.

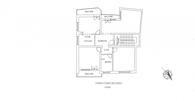
Camaiore: si propone in Vendita Appartamento di civile abitazione al secondo piano di una piccola palazzina di sole tre unità, senza ascensore e senza spese condominiali, situato in zona centrale e ben servita.
L'immobile è caratterizzato da ambienti ampi, ben distribuiti e molto luminosi, oltre a pertinenze esclusive al piano terra come il posto auto privato e una comoda rimessa di proprietà ideale per moto, bici o attrezzatura varia. L'ingresso centrale, vero cuore della casa, dà accesso alla zona giorno composta da un'ampia sala suddivisa in area pranzo e zona TV con balcone, e alla cucina separata in due ambienti distinti: zona operativa completa di forno, lavastoviglie e frigorifero, e tinello con camino funzionante e ulteriore balcone. Dall'ingresso si accede anche alla zona notte, composta da due grandi camere matrimoniali, di cui una con balcone, e da un bagno finestrato con box doccia, anch'esso luminoso.
L'Appartamento si presenta in buone condizioni generali: facciata e tetto sono stati rifatti nel 2013, gli infissi sono nuovi in PVC con vetrocamera, alcuni pavimenti sono stati sostituiti con materiali moderni mentre altri, in graniglia d'epoca, sono stati lucidati e mantenuti con cura. Soluzione ideale per chi cerca una casa pronta da abitare, senza spese condominiali, con spazi generosi, pertinenze comode e tutte le principali comodità a portata di mano.

DISTANZE: 0 mt Camaiore centro storico, 8,8 km Lido di Camaiore (spiagge), 12,2 Km Viareggio, 33 km Lucca, 16 km Forte dei Marmi, 43 km Pisa, 101 km Firenze.

Vuoi visionare l'Appartamento in Vendita a Camaiore ? Prenota la tua visita riservata.


IMMOBILIARE CASANI - agenzia immobiliare a Camaiore (Lu)
www.immobiliarecasani.it ( immobiliare casani agenzia immobiliare a Camaiore)
cell. +39 392 7582808 ( immobiliare casani cellulare agenzia immobiliare Camaiore)
Tel. : 0584 988956 ( immobiliare casani Telefono fisso agenzia immobiliare a Camaiore)
Via Vittorio Emanuele, 5 - 55041 Camaiore (Lu)

l comune di Camaiore possiede ventitré frazioni all'interno del proprio territorio: Capezzano Pianore, Casoli, Fibbialla, Fibbiano Montanino, Gombitelli, Greppolungo, La Culla, Lido di Camaiore, Lombrici, Marignana, Metato, Migliano, Monteggiori, Montemagno, Nocchi, Orbicciano, Pedona, Pieve di Camaiore, Pontemazzori, Santa Lucia, Santa Maria Albiano, Torcigliano, Valpromaro.

Classe energetica: F EP glnr: 155.19 kwh/㎡
€ 215.000
Caratteristiche dell'immobile
Scopri le caratteristiche di questo immobile
Galleria immagini
Viene a vedere l'immobile
Contattaci

Ultimo aggiornamento 21/10/2025
×
Codice
Contratto
Scegli dove cercare
Tipologia - multiscelta
Prezzo


Totale mq


Locali minimi
Bagni minimi
Camere minime
Altre opzioni - multiscelta